Home  :  index.htm L E H M B A U A U S S T E L L U N G  Kampnagel 1986
Presse
Impressum Kontakt
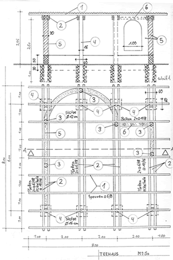
Teehaus  Rückner/Gäde/Abbas/Lackmann/Petersen
Keramisches Haus - Joachim Karcher
keramisches haus
Lehmschlot Günter zur Nieden
lehmschlot
Ansicht aussen
Badehaus Paul Wehrle
badehaus
Platz des Feuers Rainer Niermann
Platz des Feuers Rainer Niermann
Laermschutzwall Piritzen Marcel Kalberer Laermschutzwall Piritzen Marcel Kalberer
Flechtwerkkuppeln Urte Reisgies
Flechtwerkkuppeln Urte Reisgies
8 Giganten Birgitta Weimer 8 Giganten Birgitta Weimer
Ansicht aussen
Teehaus
Teehaus
Teehaus Aussenecke Fachwerk Lehmausfachung
Kroetz Eckert Rupprecht Kroetz Eckert Rupprecht
Lehmbaden
Lehmbaden
Teehaus Innen Plan Skelett Statik
Teehaus Aussenecke Fachwerk Lehmausfachung
Teehaus Innen
Teehaus Innen
Studentengruppe Rückner/Gäde/AbbasLackmann/Petersen Bau eines Fachwerkgebäudesmit Ausbauteilen und Ausfachungen aus Lehm Schutz durch Kalkschlämme
km.rupprecht@web.de